Bürgersprechzeiten
|
Montag 8.00 – 12.00 Uhr und 14.00 – 16.00 Uhr Dienstag 8.00 – 12.00 Uhr Mittwoch 8.00 – 12.00 Uhr Donnerstag 8.00 – 12.00 Uhr und 14.00 – 18.00 Uhr Freitag 8.00 – 12.00 Uhr |
Telefon0911 / 518 57 – 0 Fax0911 / 518 57 – 40 MailNachricht senden |
Bebauungspläne
Die hier hinterlegten Bebauungspläne geben keine Auskunft darüber, ob in diesem Bereich noch Grundstücke verkauft werden. Sie sollen jedoch eine erste Orientierungshilfe für evtl. Baufragen darstellen.
Bitte beachten Sie bei der Internetansicht von Bebauungsplänen folgende Nutzungshinweise:
Dieser Service ersetzt nicht die Rechtsverbindlichkeit der Originalpläne. Nur der Originalplan gibt im Sinne des BauGB die gültige Rechtslage wieder.
Bitte beachten Sie, dass der auf dem Planteil angegebene Maßstab beim Ausdrucken unter Umständen nicht korrekt wiedergegeben wird.
Der Umgang und das Lesen der Bebauungspläne erfordert zum Teil umfangreiches Fachwissen. Neben den Bebauungsplänen können auch noch andere Satzungen und Verordnungen (z.B. Dachgaubensatzung) gelten. Darüber hinaus sind zur vollständigen Ermittlung der Regelungsinhalte des jeweiligen Bebauungsplanes noch weitere Gesetze, wie z. B. das Baugesetzbuch (BauGB), die Baunutzungsverordnung (BauNVO) in der jeweils gültigen Fassung sowie Anleitungen, Richtlinien und DIN-Vorschriften hinzuzuziehen. Einzelne Regelungen und Bereiche eines Bebauungsplans können nachträglich geändert worden sein, aufgrund von Gerichtsentscheidungen nicht mehr gelten oder auch aktuell Gegenstand einer gerichtlichen Kontrolle sein.
Bei konkreten Fragen zu einem Bebauungsplan wenden Sie sich daher bitte an den Fachbereich 3 Planen und Bauen des Marktes Heroldsberg.
Alle Bebauungspläne, der Gründordnungsplan für das Gründlachtal und der Flächennutzungsplan können im Fachbereich 3 im Original eingesehen werden.
I : Gebiet nord-westlich der Hauptstraße
Bebauungsplan Nr. I/1 „Nord“
– Plan inkl. zeichnerischen u. textlichen Festsetzungen
Bebauungsplan Nr. I/3A „Gewerbegebiet Nord“
-Plan inkl. zeichnerischen u. textlichen Festsetzungen
Bebauungsplan Nr. I/3A „Gewerbegebiet Nord 1. Änderung“
-Plan inkl. zeichnerischen u. textlichen Festsetzungen
Bebauungsplan Nr. I/3B „Am Schleifweg“
– Plan inkl. zeichnerischen u. textlichen Festsetzungen
Bebauungsplan Nr. I/3B „Am Schleifweg 1. Änderung“
-Plan inkl. zeichnerischen u. textlichen Festsetzungen
Bebauungsplan Nr. I/3D „Gewerbegebiet Nord, Erweiterung“
-Plan inkl. zeichnerischen u. textlichen Festsetzungen
Bebauungsplan Nr. I/3D „Gewerbegebiet Nord, 1.Erweiterung 1.Änderung“
-Plan inkl. zeichnerischen u. textlichen Festsetzungen“
Bebauungsplan Nr. I/3E „Gewerbegebiet-Nord, 2.Erweiterung“
-Plan inkl. zeichnerischen u. textlichen Festsetzungen“
Bebauungsplan Nr. I/4 „Kohlengasse-West“
-Plan inkl. zeichnerischen u. textlichen Festsetzungen“
Bebauungsplan Nr. I/9 „Friedhofsstraße/Kalchreuther Weg“
-Plan inkl. zeichnerischen u. textlichen Festsetzungen
Bebauungsplan Nr. I/10 „Kohlengasse-Nord“
-Plan inkl. zeichnerischen u. textlichen Festsetzungen
Bebauungsplan Nr. I/11 „Brunnenstr./Adlerstr./Schimmelleitenweg
-Plan inkl. zeichnerischen u. textlichen Festsetzungen
Bebauungsplan Nr. I/14 „Jagdweg/Demmerweg/Bäckengasse“
– Plan inkl. zeichnerischen u. textlichen Festsetzungen
Bebauungsplan Nr. I/14A „Bäckengasse/Jagdweg“
-Plan inkl. zeichnerischen u. textlichen Festsetzungen“
Bebauungsplan Nr. I/15 „Geranienweg“
– Plan
– zeichnerische Festsetzungen
– textliche Festsetzungen
Bebauungsplan Nr. I/16 „Spechtweg“
– Plan
– zeichnerische Festsetzungen
– textliche Festsetzungen
Bebauungsplan Nr. I/17
„Schimmelleitenweg-West“
– Plan inkl. zeichnerische Festsetzungen
– textliche Festsetzungen
II : Gebiet nord-östlich der Hauptstraße
Bebauungsplan Nr. II/2 „Adam-Kraft/Zum Blech/Peter-Henlein-Str.“
-Plan inkl. zeichnerischen u. textlichen Festsetzungen
Bebauungsplan Nr. II/4 „Adam-Kraft/Reichswaldstr.“
-Plan inkl. zeichnerischen u. textlichen Festsetzungen
Bebauungsplan Nr. II/4A „Tucherstraße“
– Plan
– zeichnerische Festsetzungen
– textliche Festsetzungen
Bebauungsplan Nr. II/4B „1. Änderung B-Plan Tucherstraße“
– Plan
– zeichnerische Festsetzungen
– textliche Festsetzungen
Bebauungsplan Nr. II/8 „Nord/Zum Blech“
-Plan inkl. zeichnerischen u. textlichen Festsetzungen
Bebauungsplan Nr. II/8A “ Nord/Zum Blech-Änderung“
-Plan inkl. zeichnerischen u. textlichen Festsetzungen
Bebauungsplan Nr. II/10 „Zum Blech Nord“
-Plan inkl. zeichnerischen u. textlichen Festsetzungen
Bebauungsplan Nr. II/11 „Holzschuherstr. Süd/Sudetenstr.“
-Plan inkl. zeichnerischen u. textlichen Festsetzungen
Bebauungsplan Nr. II/12 „Lange Gasse/Schlossbad“
-Plan inkl. zeichnerischen u. textlichen Festsetzungen
Bebauungsplan Nr. II/13 „Sebastian-Lindenast-Straße“
– Plan inkl. zeichnerische u. textliche Festsetzungen
Bebauungsplan Nr. II/14 „Zum Blech Nord-Ost“
-Plan inkl. zeichnerischen u. textlichen Festsetzungen
Bebauungsplan Nr. II/14A „Zum Blech Nord-Ost 1. Änderung“
– Plan inkl. zeichnerische Festsetzungen
– textliche Festsetzungen
Bebauungsplan Nr. II/16 „Egerlandstraße-Südwest“
-Plan inkl. zeichnerischen u. textlichen Festsetzungen
Bebauungsplan Nr. II/17 „zwischen Egerland- und Sudetenstraße“
-Plan inkl. zeichnerischen u. textlichen Festsetzungen
Bebauungsplan Nr. II/18 „Beim Eichenwäldchen“
– Plan
– zeichnerische Festsetzungen
– textliche Festsetzungen
Bebauungsplan Nr. II/20 „Lange Gasse/Gründlachtal“
-Plan inkl. zeichnerischen u. textlichen Festsetzungen
III : Gebiet süd-westlich der Hauptstraße
Bebauungsplan Nr. III/1A „Am Bühl – Bebauungsplanänderung“
-Plan inkl. zeichnerischen u. textlichen Festsetzungen
Bebauungsplan Nr.III/1C „Am Bühl – Bebauungsplanänderung“
-Plan inkl. zeichnerischen u. textlichen Festsetzungen
Bebauungsplanänderung Nr. III/1D „Am Bühl – Bebauungsplanänderung“
-Plan inkl. zeichnerischen u. textlichen Festsetzungen
Bebauungsplan Nr. III/1H „Am Bühl Nord – Bebauungsplanänderung“
-Plan inkl. zeichnerischen u. textlichen Festsetzungen
Bebauungsplan Nr. III/1K
„Finkenweg / Adlerstraße“
– Plan inkl. zeichnerischen u. textlichen Festsetzungen
Bebauungsplan Nr. III/1L „Finkenweg / Schimmelleitenweg“
– Plan inkl. zeichnerischen u. textlichen Festsetzungen
Bebauungsplan Nr. III/1M „Finkenweg Nord“
– Plan inkl. zeichnerischen u. textlichen Festsetzungen
Bebauungsplan Nr. III/2 „Obere Seelach/Am Ruhstein“
-Plan inkl. zeichnerischen u. textlichen Festsetzungen
Bebauungsplan Nr. III/2A „Obere Seelach/Am Ruhstein – Bebauungsplanänderung“
-Plan inkl. zeichnerischen u. textlichen Festsetzungen
Bebauungsplan Nr. III/3 „Forstweg“
-Plan inkl. zeichnerischen u. textlichen Festsetzungen
Bebauungsplan Nr. III/3B „Forstweg – Bebauungsplanänderung“
-Plan inkl. zeichnerischen u. textlichen Festsetzungen
Bebauungsplan Nr. III/3C „Forstweg – Bebauungsplanänderung“
-Plan inkl. zeichnerischen u. textlichen Festsetzungen
Bebauungsplan Nr. III/3D „Forstweg“
-Plan inkl. zeichnerischen u. textlichen Festsetzungen
Bebauungsplan Nr. III/4 „Am Bühl – Nord“
-Plan inkl. zeichnerischen u. textlichen Festsetzungen
Bebauungsplan Nr. III/4A „Am Bühl Nord – Bebauungsplanänderung“
-Plan inkl. zeichnerischen u. textlichen Festsetzungen
Bebauungsplan Nr. III/6 „Haidbergweg/Hauptstraße“
-Plan inkl. zeichnerischen u. textlichen Festsetzungen
Bebauungsplan Nr. III/6A „Haidbergweg/Hauptstraße – Bebauungsplanänderung“
-Plan inkl. zeichnerischen u. textlichen Festsetzungen
Bebauungsplan Nr. III/11 „Untere Seelach Süd“
-Plan inkl. zeichnerischen u. textlichen Festsetzungen
Bebauungsplan Nr. III/11A „Untere Seelach Süd – Bebauungsplanänderung“
-Plan inkl. zeichnerischen u. textlichen Festsetzungen
Bebauungsplan Nr. III/15A „Sportplatzweg/Schützenstraße“
-Plan inkl. zeichnerischen u. textlichen Festsetzungen
Bebauungsplan Nr. III/16 „Hauptstraße / Sportplatzweg“
– Plan inkl. zeichnerischen u. textlichen Festsetzungen
Bebauungsplan Nr. III/16A „Sportplatzweg Nord“
-Plan inkl. zeichnerischen u. textlichen Festsetzungen
Bebauungsplan Nr. III/17 „Bahnhof/Hauptstraße“
-Plan inkl. zeichnerischen u. textlichen Festsetzungen
Bebauungsplan Nr. III/17A „Rathaus mit Bürgerhaus“
-Plan inkl. zeichnerischen u. textlichen Festsetzungen
Bebauungsplan Nr. III/20 „Am Ruhstein Ost“
– Plan
– zeichnerische Festsetzungen
– textliche Festsetzungen
– 1. Änderung der textlichen Festsetzungen
Bebauungsplan Nr. III/20A „Am Ruhstein Ost 1.Änderung“
-Plan inkl. zeichnerischen u. textlichen Festsetzungen
Bebauungsplan Nr. III/21A „Hauptstraße Orteingang – Süd 1.Änderung“
-Plan inkl. zeichnerischen u. textlichen Festsetzungen
IV : Gebiet süd-östlich der Hauptstraße
Bebauungsplan Nr. IV/1 „Weinmayrsberg West“
-Plan inkl. zeichnerischen u. textlichen Festsetzungen
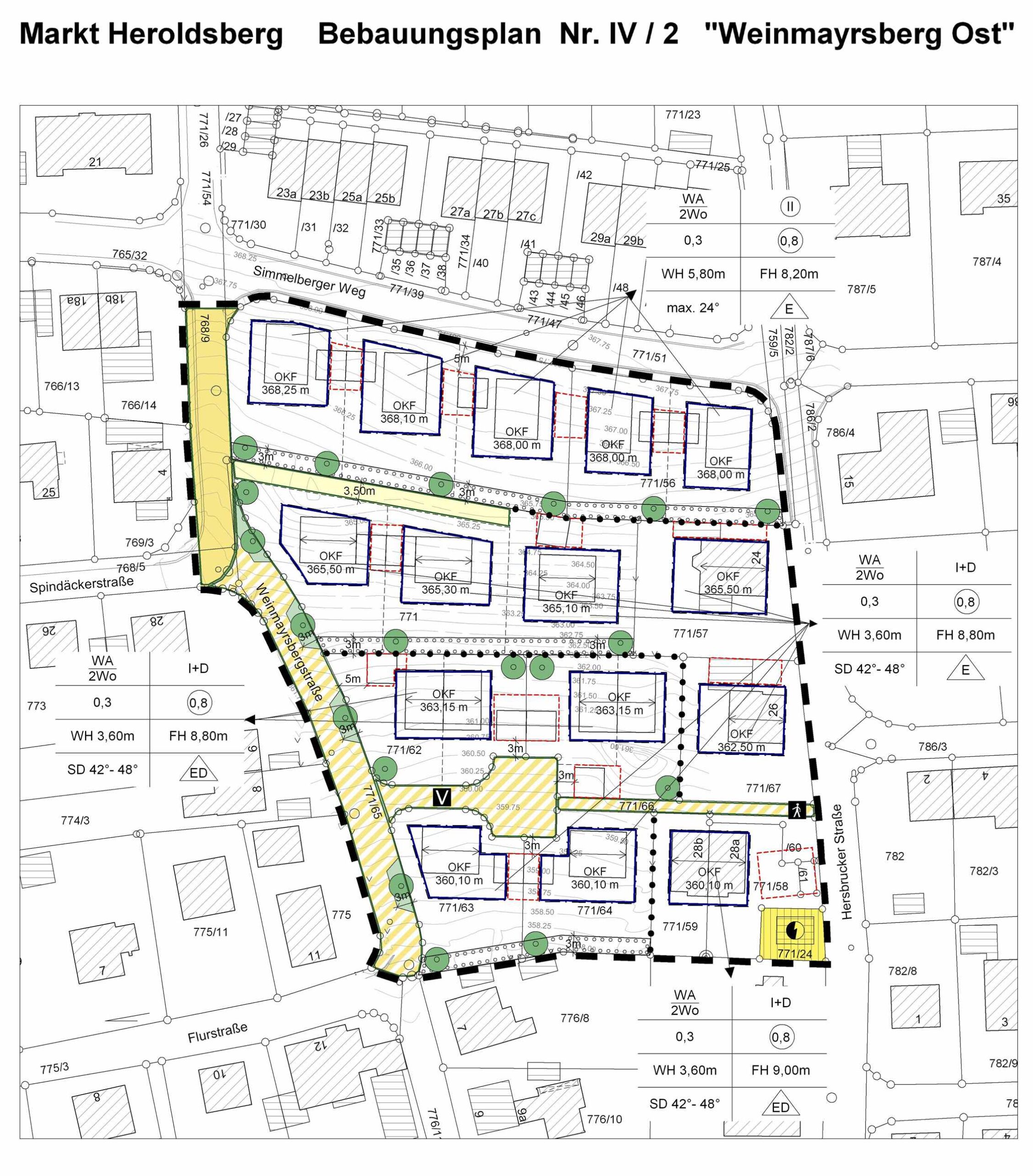
Bebauungsplan Nr. IV/2 „Weinmayrsberg Ost“
– Plan
– zeichnerische Festsetzungen
– textliche Festsetzungen
Bebauungsplan Nr. IV/3 „Laufer Weg/Reichswaldstr. Ost“
-Plan inkl. zeichnerischen u. textlichen Festsetzungen
Bebauungsplan Nr. IV/4 „Wiesenweg“
-Plan inkl. zeichnerischen u. textlichen Festsetzungen
Bebauungsplan Nr. IV/4A „Wiesenweg Süd“
-Plan inkl. zeichnerischen u. textlichen Festsetzungen
Bebauungsplan Nr. IV/5 „Reichswald-Schnaittacher-Röthenbacher-Str.“
-Plan inkl. zeichnerischen u. textlichen Festsetzungen
Bebauungsplan Nr. IV/5B „Reichswald-/Röthenbacher-/Schnaittacher Str.“
-Plan inkl. zeichnerischen u. textlichen Festsetzungen
Bebauungsplan Nr. IV/6 „Obere Bergstr.“
-Plan inkl. zeichnerischen u. textlichen Festsetzungen
Bebauungsplan Nr. IV/11A
„Nördl. Röthenbacher Straße“
– Plan
– zeichnerische Festsetzungen
– textliche Festsetzungen
Bebauungsplan Nr. IV/13 „Rassegeflügelzuchtanlage am Laufer Weg“
-Plan inkl. zeichnerischen u. textlichen Festsetzungen
Bebauungsplan Nr. IV/15 „Wiesenweg“
-Plan inkl. zeichnerischen u. textlichen Festsetzungen
Bebauungsplan Nr. IV/16 mit Grünordnungsplan
„Gärten Wiesenweg“
-Plan inkl. zeichnerischen u. textlichen Festsetzungen
Bebauungspläne Großgeschaidt
Bebauungsplan Nr. 11/1 „Nord-Ost“
-Plan inkl. zeichnerischen u. textlichen Festsetzungen
Bebauungsplan Nr. 11/2 „Brandleite“
-Plan inkl. zeichnerischen Festsetzungen
textliche Festsetzungen
Bebauungsplan Nr. 11/3 „Am Bahnhof“
-Plan inkl. zeichnerischen u. textlichen Festsetzungen
Bebauungsplan Nr. 11/5 „Siedlung-West“
-Plan inkl. zeichnerischen u. textlichen Festsetzungen
Bebauungsplan Nr. 11/6 „Brandleite II“
-Plan inkl. zeichnerischen u. textlichen Festsetzungen
Bebauungsplan Nr. 11/6A „Brandleite II“
-Plan inkl. zeichnerischen u. textlichen Festsetzungen
Bebauungsplan Nr. 11/9
„Am Bahnhof / Falzwiesen“
– Plan inkl. zeichnerischen u. textlichen Festsetzungen
Bebauungsplan Nr. 11/9A „Am Bahnhof 1.Änderung“
-Plan inkl. zeichnerischen u. textlichen Festsetzungen
Bebauungsplan Nr. 11/12 „Großgeschaidt-West“
-Plan inkl. zeichnerischen u. textlichen Festsetzungen
Bebauungsplan Nr. 11/13 „Großgeschaidt Südost“
-Plan inkl. zeichnerischen u. textlichen Festsetzungen
Bebauungsplan Nr. 11/14 „An den Schmidwiesen“
-Plan inkl. zeichnerischen u. textlichen Festsetzungen
Bebauungspläne Kleingeschaidt
Bebauungsplan Nr. 15/1 „Drei Gewende“
– Plan inkl. zeichnerischen u. textlichen Festsetzungen
Bebauungsplan Nr. 15/1A „Drei Gewende“
-Plan inkl. zeichnerischen u. textlichen Festsetzungen
Bebauungsplan Nr. 15/2 „Drei Gewende II“
-Plan inkl. zeichnerischen u. textlichen Festsetzungen
Bebauungsplan Nr. 15/3 „Hutgasse“
-Plan inkl. zeichnerischen u. textlichen Festsetzungen
Bebauungsplan Nr. 15/4 „Thomas-Flad-Weg“
-Plan inkl. zeichnerischen u. textlichen Festsetzungen
Bebauungsplan Nr. 15/5 „Schwindeläcker“
-Plan inkl. zeichnerischen u. textlichen Festsetzungen
Grünordnungsplan
Nr. II/19 „Gründlachtal“
-Plan inkl. zeichnerischen u. textlichen Festsetzungen
Satzungen nach § 34 und § 35 BauGB
Außenbereichssatzung Stettenberger Weg
– Satzung inkl. Lageplan
Einbeziehungssatzung Laufer Weg
– Satzung inkl. Lageplan
Einbeziehungssatzung Kleingeschaidt (Südosten)
– Satzung inkl. Lageplan
Einbeziehungssatzung Kleingeschaidt („Reime-Siedlung“)
– Satzung inkl. Lageplan
Flächennutzungsplan Markt Heroldsberg
Bitte beachten Sie, dass es sich beim Flächennutzungsplan um ein internes Planungsinstrument der Gemeinde handelt, aus dem keine bauplanungsrechtlichen Ansprüche abgeleitet werden können.
Flächennutzungsplan
1. Änderung
2. Änderung
3. Änderung
4. Änderung
5. Änderung
6. Änderung
7. Änderung


